Алюминиевая профильная система - Ponzio PT50

Алюминиевая профильная система - Ponzio PT50
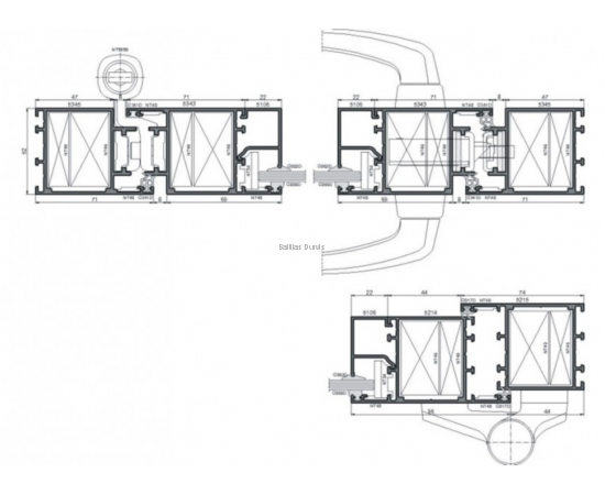
Алюминиевая профильная система без теплоизоляции, предназначена для внутренних конструкций: аэродинамических труб, кассовых аппаратов, витрин и перегородок. Эта система также используется для раздвижных и дымонепроницаемых дверей (с ручным и автоматическим управлением). Ponzio PT50 позволяет использовать внутренние стеклопакеты, алюминиевые панели, мебельные щиты, гипсокартонные и поликарбонатные плиты, сэндвич-панели шириной 1-40 мм. Глубина монтажа профиля - 52-60 мм.






