Алюминиевая профильная система для дверей - Ponzio NT 78EI

Алюминиевая профильная система для дверей - Ponzio NT 78EI
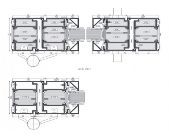
Трехкамерная система Ponzio NT 78EI предназначена для установки внутренних и внешних огнеупорных перегородок. Ponzio NT 78EI делает возможным монтаж одностворчатых и двустворчатых дверей, открывающихся наружу или внутрь, с различными пороговыми решениями. Система использует термические накладки шириной 35 мм. Конструктивная глубина рамы и створки - 78 мм. Трехкамерная структура и дополнительные усиливающие элементы позволяют производить конструкции большого размера.
- Совместимость с другими системами PONZIO;
- Возможность облицовки внешней стороны двери;
- Различные варианты установки створок;
- Возможность создания арочных конструкций;
- Огнеупорное наполнение: гипс, алюмосиликат;
- Наполнение: 8-50 мм.






