Alumīnija profilu sistēma - Ponzio PE52

Alumīnija profilu sistēma - Ponzio PE52
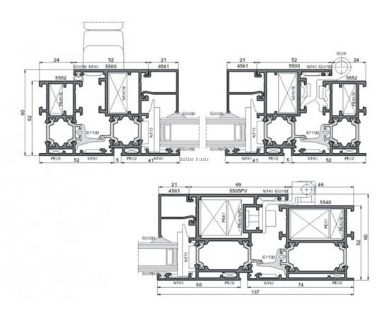
Rāmja dziļums šajā trīskameru sistēmā ir 52 mm, 60 mm – vērtnes dziļums. Sistēma ļauj izmantot plašu aparatūras spektru, kas atvieglo darbu. Trīskameru profilam tiek nodrošināts augstāks cietums, tāpēc konstrukcijai var būt lielāks izmērs.
Sistēmas apraksts:
- Savienojamība ar citām Ponzio sistēmām;
- Iespēja uzstādīt logus un durvis fasāžu sistēmās;
- Divkomponentu EPDM blīvju izmantošanas iespēja, kuru raksturo lieliska siltumizolācija, estētisks izskats un montāžas vieglums;
- Dažāda veida logu vērtnes veidi – verams, atgāžams, verams/atgāžams;
- Savienojuma veidi – iepresēšana, salīmēšana;
- Divas rievas: eirorieva, PVC rieva;
- Pildījums: 10-43 mm;
- Profila liekšana;
- Siltumvadītspējas koeficients Uf = 2,1–2,5 W/m2K.






